项目介绍
成都市高投芯光智造园项目
施工方 | 成都倍特建筑安装工程有限公司
高新区高投芯光智造园项目为设计-施工总承包工程,项目坐落于成都高新区西园街道,施工单位成都倍特建筑安装工程有限公司牵头。成员单位包括中国五冶集团有限公司、设计单位中国建筑西南设计研究院有限公司。
智能建造主要应用于本项目 6#楼及其相应地下室(南区 2),该楼地上 35 层,建筑1层,是配套用房、丙类厂房、避难层及辅助用房。
建设内容
-
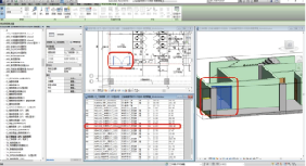
数据协同数据协同本次项目数据协同应用主要分为设计协同管理、施工协同管理及BIM 模型协同平台三个部分。
设计协同主要是设计阶段各主体专业基于 BIM技术进行设计协同并进行数据传递和数据集成,实现一模多用,多专业协同设计,减少各专业之间错漏碰缺问题。
施工协同主要通过智慧工地管理平台,将甲方、勘察、设计、监理与施工单位人员纳入,分配不同权限,进行进度、安全、质量、商务等管理,探索数字化管理道路。
BIM模型协同主要通过协同平台对模型进行统一管理,便于BIM 人员在不同办公地点可以随时调取模型,并通过轻量化模型进行交底应用。
-
智慧运维智慧运维建筑智能化集成系统通过物联技术,实现对视频监控系统、视频监控、停车场、门禁、消防、 能耗管理等系统的集成信息化管理,以及系统下各电梯、照明、给排水、 暖通空调等设备的检测、控制和预警,以信息化集成管理方式,取代常规人员管理,实现故障信息高效传递、及时止损,同时管理的降本增效。
-
智能施工智能施工项目智能施工主要体现在智慧工地管理平台应用及智能施工机器人应用两个方面。
移动巡更、智能水电表、升降机安全监测、深基坑安全监测等智能化应用对施工场地的人、材、机、质量、安全、环境与能耗等管控;履带磨平机器人、实测实量机器人、智能布料机等建筑机器人应用,提升项目施工智能化,自动化,减少人工作业劳动力,提升建筑构件成型质量。
-
智能生产智能生产本项目智能生产主要分为PC构件与钢结构两大部分,通过智能生产系统,实现智能排产,智慧生产,数字化生产管理系统通过一物一码、生成溯源、移动协同、堆场管控、自动报表,用轻量高效的方式帮助工厂提高生产效率、降低制造成本、打通信息孤岛,实现工厂无纸化信息管理。
-
数字设计数字设计对项目进行全专业正向设计及出具施工图,项目由中国建筑西南设计研究院有限公司进行设计,项目采用正向设计,从方案阶段开始采用BIM模型,进行结构设计,模型双向互导,实现一模多用。
应用效益
(1)工期工序优化:通过建造机器人应用,优化施工工序,提高施工效率,缩短施工工期,提升建造效率。拟缩短基础分部工程工期 5%以上,室内装修工期 5%以上。
(2)采用智能建造机器人,减少劳动工人投入,拟减少基础分部工程、室内装修工程总用工量 5%以上(与定额比较)。
